|
联系

泰州泰仪自动化有限公司
电 话:0523-82295988
传 真:0523-86915528
联系人:13814473028(于经理)
E-mail:sales@jshuyi.com
地址:江苏省泰州市共建8号
|
|

金属管浮子流量计是YH仪表采用可变面积式测量原理生产研究,适用于测量液体,气体。全金属结构,有指示型、电远传型、耐腐型、高压型、夹套型、防爆型。具有 0-10mA,4-20mA的标准模拟量信号输出和现场指示。累积,数字通讯,现场修改测量参数,不同的供电方式功能,带有磁性过滤器和特殊规格品种。广泛应用于,石油、化工、发电、制药、食品、水处理等。复杂,恶劣环境条件,及各种介质条件的流量测量过程中。概 述
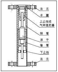
标准型LZ系列成丰金属管浮子流量计由一个测量管和一个就地指示器组成。 就地指示器还可以选择安装附加的电气部件,适用于液体和气体的测量。 本流量计由YH仪表集团采用变面积式测量原理,测量部件由一个锥形测量管和浮子 组成,浮子能在锥形测量管中自由的上下移动,改变管道中的流通面积, 随着流量大小的变化,浮子在测量管中的垂直位置也发生相应的变化,通钢管过磁传递系统将浮子的位置传递到指示器的刻度盘上,指示流量值的大小。 在M6、M8、M9指示器中,随动磁铁的转动被直接传送到刻度盘上; 在M7指示器中,随动磁铁的转动通过一个凸轮板使指针线性的指示流量值 的大小。 |
|

| 特 点
1.全金属结构,坚固稳定。 2.短行程、小型结构设计。 3.低压力损失设计。 4.新型磁耦合结构设计确保传输信号更加稳定。 5.根据用户要求可以加装磁过滤器。 6.可带保温或伴热夹套。 7.用于各行业的气体和液体测量,测量部分可采用不同的材质来适应不同的介质条件。 8.适合于恶劣环境和腐蚀严重的介质, 具有良好的抗热性和耐压性。 9.智能型双行液晶显示,可选现场瞬 时/累计流量显示,可带背光。 10.可选二线制、电池、交流供电方式。 11.带有数据恢复、数据备份及掉电 保护功能。 |

| M7、M9指示器
◆ M7指示器 A、就地指示器,通过凸轮板修正线性的指示流量。 B、采用最新型的ESK型信号变送器,可兼有HART协 议通讯功能。 C、可在就地流量指示型仪表内选择安装: ◇ 带(4~20)mA线性输出的5W1角位移信号变送器; ◇ 带(4~20)mA非线性输出无滞后的ESK型信号变送器; ◇ 上、下限报警开关。 |
|
◆ M9指示器 A、在指示器中采用一对耦合磁钢完成流量指示和电信号转换。 B、采用最新型的ESK型信号变送器,可兼有HART协议通讯功能。 C、可在就地流量指示型仪表内选择安装: ◇ 带(4~20)mA非线性输出并无滞后的ESK型信号变送器; ◇ 上、下限报警开关。 | 产品选型编码

 |